Status

Beschikbaar

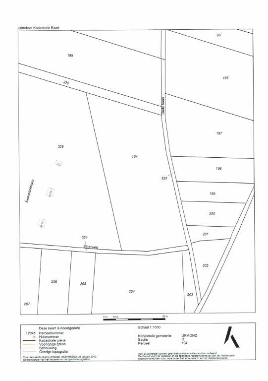
Perceelnummer

Sectie: D 206 en D194

Adres

Oude baan / Sitterweg

Plaats

Urmond

Oppervlakte

D194: 0 ha 13 a 00 ca en,

D206: 0 ha 64 a 20 ca

Soort grond

Weiland

Prijs

Op aanvraag

Brochure
pdf1

INFORMATIE

De gemarkeerde foto geeft een indicatie weer van de ligging van het perceel. Deze kan afwijken van de werkelijkheid.

LIGGING

Heeft u vragen?

Vermeld in het onderwerp het perceelnummer of neem rechtstreeks met ons contact op. Telefoon 06-31698369

    Naam (verplicht)

    E-mail (verplicht)

    Telefoon

    Onderwerp

    Bericht